Tunnel Behringen
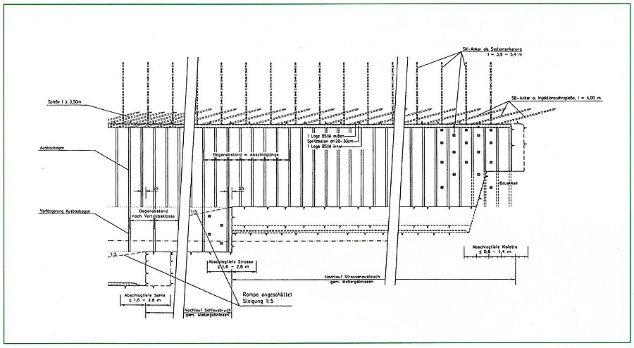
Erstmals in Deutschland wurden 3 Tunnelröhren parallel gebaut. Im Zuge des Neubaus der Autobahn A 71 Erfurt-Schweinfurt im Freistaat Thüringen, als Bestandteil des Verkehrsprojektes Deutsche Einheit, verläuft der Bundesautobahntunnel Behringen als Teil der Bündelungstrasse parallel zur Neubaustrecke Erfurt - Ebensfeld der Deutschen Bahn. Die Trasse der A 71 wird in zwei getrennten Röhren durch den nordwestlich von Behringen gelegenen Osterberg geführt. Der Achsabstand der Röhren beträgt 26,8 m, der lichte Abstand beträgt in etwa 16 m. Der zweigleisige Tunnel der Neubaustrecke läuft parallel mit einem Achsabstand von 44 m zum Autobahntunnel. Die Überdeckung der Tunnelliegt zwischen 9 und 31 m. Zwischen Bahn- und Autobahntunnel gibt es keine Verbindung, die beiden Röhren der Autobahn sind durch einen Querschlag verbunden. Es wurden überwiegend Buntsandstein (Röt- und Myophorenschichten) sowie Unterer und Mittlerer Muschelkalk angetroffen. Der Tunnel Behringen durchörtert überdies die überregional bedeutsame sogenannte Hainich-Saalfelder Störungszone mit Verwerfungen und Falten, welche durch den Grabenbruch im Thüringer Becken entstand. Die Ausbruch- und Sicherungsarbeiten in den einzelnen Röhren wurden aufgrund der geringen Tunnelabstände und ungünstiger Gebirgseigenschaften genauestens aufeinander abgestimmt und durch begleitende geotechnische Messungen dokumentiert und auf ihre Wirksamkeit überprüft. In den Röt- und Myophorenschichten wurde mit dem Bagger vorgetrieben, Abschnitte mit Muschelkalk wurden im Sprengvortrieb aufgefahren. Die maximale Abschlagslänge lag jeweils bei 1,4m. Der Endausbau wurde mit einer Abdichtung und einer bewehrten Innenschale in WU-Beton bewerkstelligt.
- Land: Deutschland
- Region: Thüringen
- Tunnelnutzung: Verkehr
- Nutzungsart: Autobahntunnel
- Auftraggeber: DEGES (Verkehrsprojekt Deutsche Einheit) und Deutsche Bahn AG (PB DE)
- Ausführungsplanung: BPI
- Ausführung: Ed. Züblin AG
- Bauweise: Geschlossen
- Vortrieb: Sprengvortrieb
- Auskleidung: Ortbeton
- Anz. Röhren: 3
- Gesamtlänge: 3x465 m
- Querschnitt: bergmännisch 141 m² und 2 x 101 m²
- Herstellkosten: ca. 42 Mio. DM
- Bauzeit: 1996 bis 1999
- Inbetriebnahme: 1998 (Autobahntunnel)


